Окна из алюминиевых профилей
Все чаще в заказах на остекление коттеджей и террас фигурируют изделия из алюминиевого профиля. Эта тенденция связана с тем, что алюминиевый профиль имеет ряд преимуществ:
- бóльшая жесткость (позволяет изготавливать крупные панорамные конструкции);
- экологичность;
- утончённость (за счёт жёсткости возможно уменьшение количества профиля относительно площади стеклопакета)
- эстетичность;
- индивидуальность (менее распространенный продукт, который выгодно отличит внешний вид окон от традиционного пвх-остекления).
Компания АлексПроект предлагает своим клиентам окна из алюминиевого профиля ALUTECH следующих серий:
ALUTECH C48 ALUTECH W62 ALUTECH W72 УГЛОВОЕ ОКНО С ЗУБ-СТЕКЛОПАКЕТОМ
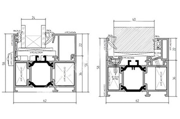
«Холодную» алюминиевую серию ALUTECH C48 (без терморазрыва)
Система ALT C48 (монтажная глубина – 48 мм) отличается передовыми характеристиками и наличием фурнитурного паза «европаз», что позволяет делать ее использованием конструкции различных типов.
Применяется для:
- внутреннего остекления;
- остекления «холодных» помещений (без постоянного отопления): террас, веранд и т.д.
Примеры последних работ ALUTECH C48 с ценами:
«Тёплую» алюминиевую серию ALUTECH W62 (c терморазрывом)
Система ALTW62 (монтажная глубина – 62 мм) — серия теплоизолированных профильных систем, специально разработанных для защиты от сильного холода и внешнего шума. На их базе производится широкий ассортимент оконных и витражных изделий разного уровня сложности.
В основе конструкции — пара профилей из алюминия, объединенных полиамидом, который дополнительно укреплен армированием стекловолокном. /
Применяется для остекления:
- наружное остекление в частных домах с постоянным отоплением;
- остекление административных помещений;
- широкоформатное остекление в любых помещениях.
Основные особенности конструкций, изготовленных из профиля ALTW62:
- надежность;
- долговечность;
- способность противостоять неблагоприятным внешним факторам — коррозионным поражениям, механическим ударам, солнечному свету и др.;
- экологичность;
- негорючесть;
- много вариантов разных цветов и оттенков;
- возможность получать оконные системы увеличенного размера или усложненной конструкции с разным типом открывания;
- подходят для эксплуатации в разных природных зонах.
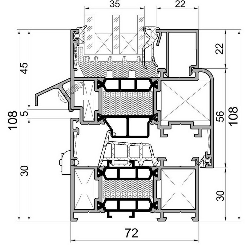
«Тёплую» алюминиевую серию ALUTECH W72 (c терморазрывом)
Система ALTW72 (монтажная глубина – 72 мм). Предназначена для производства как усложненных, так и оконных систем, которые подходят для установку в энергоэффективных постройках.
Параметры оконной системы на базе ALTW72:
Защита от шума громкостью до 43 дБ
Теплоизолирующие свойства — 1,00 Вт/м²*С°
Выдерживают ветровую нагрузку А-класса
Коэффициент светопрозрачности — класс 2
Влагопроницаемость А0
Газопроницаемость А-класса
Плюсы ALUTECH W72:
- Предельная величина светопрозрачных систем на базе ALTW72 существенно превосходит параметры похожих система не только из ПВХ или древесины, но и на базе ALTW62.А повышенная надежность и простота ухода способствуют увеличению срока их службы.
- По уровню теплозащиты профильные системы соперничают с премиальными изделиями из древесины.
- Эффективная шумоизоляция.
- Большой выбор профилей и технических реализаций.
Все оконные серии профилей ALUTECH оборудованы фурнитурным пазом «европазом». Это обеспечивает возможность инсталлировать популярную фурнитуру (как правило, используем решения STUBLINA) и делать оконные системы с разным типом открывания: от классических систем с поворотной и поворотно-откидной створкой, до фрамужных и верхнеподвесных.
Возможно комбинирование с другими светопрозрачными системами на базе алюминиевого профиля.
Все серии возможно доукомплектовать:
- покраской по RAL;
- ламинацией профиля пленками RENOLIT;
- мультифункциональными, закаленными, бронированными стеклопакетами и стеклами;
- электрооснащением, управлением.



















Недорогие окна
Остекление коттеджей
Балконные рамы
Окна в рассрочку
Остекление террас











