
Компания REHAU начала отгрузки новой профильной системы GRAZIO с пятью камерами и монтажной глубиной 70 мм. Впервые продукт был представлен производителем в 2017 году на выставке BATIMAT и уже с сентября минувшего года профиль появился на оконном рынке. Сегодня REHAU принимает заказы на изготовление новой системы без ограничений.
Система GRAZIO станет базовой для REHAU в сегменте 70 мм
Планируется, что новый профиль вытеснит с рынка базовую систему SIB-Design, которой ранее комплектовались окна REHAU в сегменте 70 мм. Постепенно новая конструкция GRAZIO REHAU придет на смену старой. Производитель с 9 января 2018 года уже не принимает заявки на изготовление системы SIB-Design, февраль – последний месяц, когда профиль еще отгружается. Начиная с марта, SIB-Design из программы поставок REHAU будет исключен.
Особенности профильной системы REHAU GRAZIO
Производитель заявляет, что GRAZIO REHAU отличается улучшенными техническими характеристиками в сравнении с профильной системой SIB-Design. Более эффективной стала теплоизоляция, профиль GRAZIO способен удерживать комфортную температуру в доме или квартире даже в тех регионах, где температура наружного воздуха падает до отметки - 40 ºС. Визуально система отличается от стандартных профилей оригинальным скосом лицевых поверхностей.

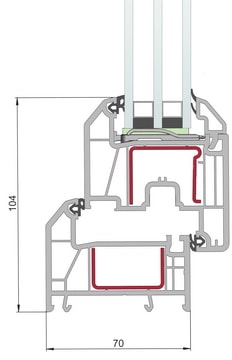
Технические характеристики REHAU GRAZIO:
- количество камер – 5;
- глубина монтажа – 70 мм;
- звукоизоляция – 39-45 дБ;
- толщина заполнения 10-41 мм;
- система уплотнений – 2-х контурная;
- материал – RAU-PVC (без кадмия, со свинцом или кальций-цинком);
- теплопроводность – 0,85 мºС/Вт (при стальном армировании);
- прочность - 3 класс, 20 000 циклов открывания и закрывания;
- сопротивление ветровой нагрузке – до класса А или C5/B5;
- водонепроницаемость – до класса А или E750;
- воздухопроницаемость – до класса А или 4;
- взломобезопасность – до класса ПВ3;
- срок эксплуатации – 60 лет.

Преимущества работы с новой системой GRAZIO
GRAZIO REHAU – это простота, практичность и экономичность. Среди достоинств профильной системы отметим:
- совместимость с дополнительными системами REHAU 70 мм;
- актуальность стандартного армирования;
- гарантия надежности благодаря механическим соединителям и фальцевым вкладышам;
- возможность монтажа усиленных запорных устройств;
- стандартная пленка REHAU для защиты.



















Недорогие окна
Остекление коттеджей
Балконные рамы
Окна в рассрочку
Остекление террас